BS20 Studio

BS20 Studio

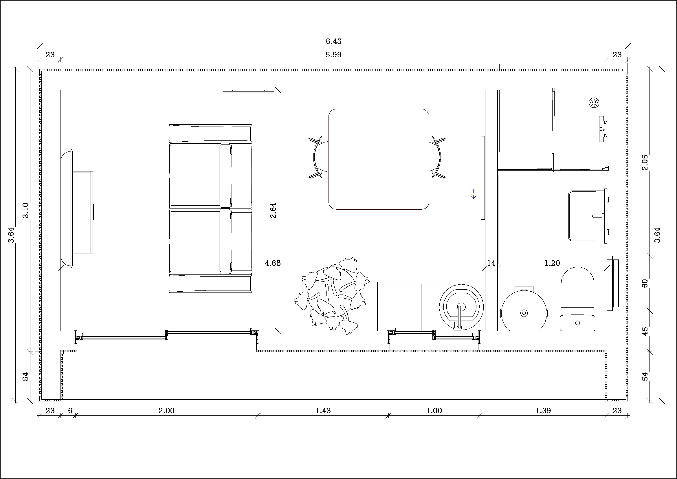
Le studio de jardin écologique de 20m². Pensé pour vous procurer le confort et l’Independence dont vous avez besoin. Doté d’une salle de douche, d’un coin cuisine et d’un agencement optimal, il est parfaitement adapté pour accueillir deux personnes. Idéal pour une location courte ou longue durée. Nécessite seulement une déclaration préalable de travaux.

6,45 X 3,10 X 2,70 m

20 m²

Vis de fondation en acier galvanisé. Le système de vis de 750mm, enfoncées à une profondeur de 65cm. Ce procédé innovant ne nécessite ni terrassement ni dalle béton, garantissant une solution durable, écologique et respectueuse de l’environnement. Selon la nature des terrains, possibilité également de plots béton ou dalle béton.
Ossature en acier léger magnélis d’arcelor mital
Respect de la norme RE2020. ITE par panneau sandwich de 100mm. Doublé d’une isolation intérieure en laine de verre
Parement en acier texture bois

Climatisation réversible chaud/froid. Production d’eau chaude par cumulus 100l

Fenêtre en aluminium RAL 2100 sablé. Double vitrage sécurité SP 10/14/4 ITR 
Réseau électrique complet. Éclairage LED intérieur et extérieur

Salle de bain :

Douche avec receveur extraplat 90×120, paroi de douche, meuble vasque, miroir, robinetterie et barre de douche noire

Cuisine :

2 meubles haut, meuble sous évier, plan de travail, robinetterie noire, évier en acier inoxydable

Terrasse, pergolas

BS20
Concept

BS25
Studio

BS25
Concept

BS25
Love

BS40
Studio