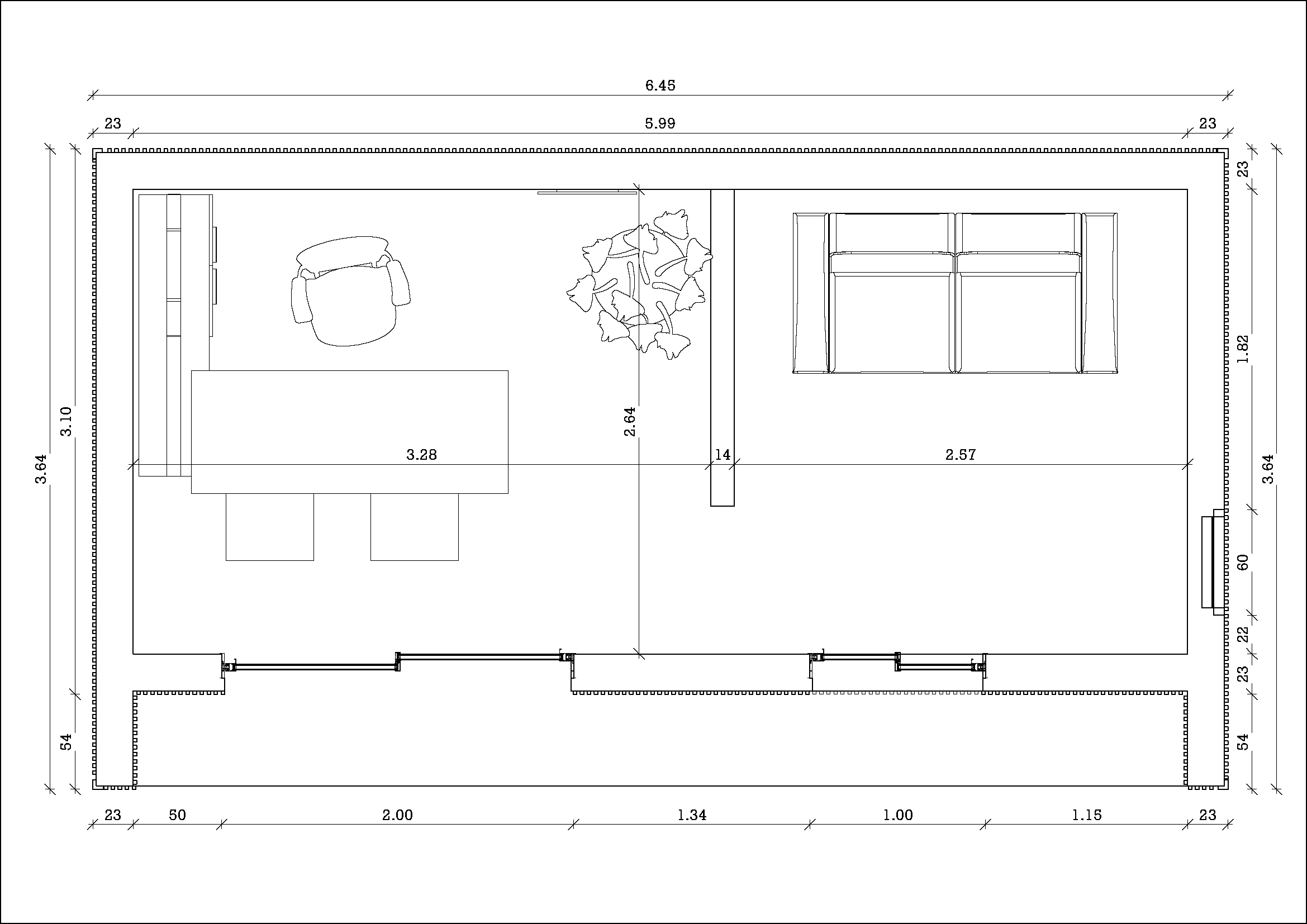
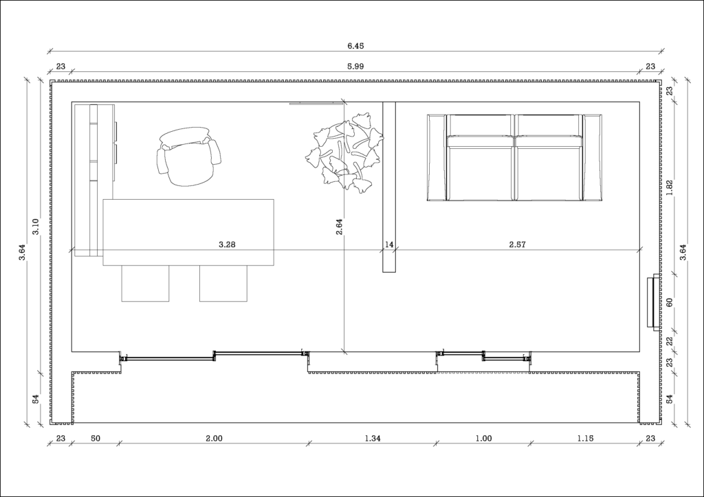
BS20 Concept

BS20 Concept

Votre espace dédié au travail ou aux loisirs directement chez vous. Personnalisez votre espace avec notre studio éco responsable de 20m². Dépourvues de salle de douche ou de coin cuisine, il offre l’environnement idéal pour travailler ou profiter de vos activités préférées en toute quiétude, tout en restant à proximité de votre maison.

6,45 X 3,10 X 2,70 m

20 m²

Vis de fondation en acier galvanisé. Le système de vis de 750mm, enfoncées à une profondeur de 65cm. Ce procédé innovant ne nécessite ni terrassement ni dalle béton, garantissant une solution durable, écologique et respectueuse de l’environnement. Selon la nature des terrains, possibilité également de plots béton ou dalle béton.
Ossature en acier léger magnélis d’arcelor mital
Respect de la norme RE2020. ITE par panneau sandwich de 100mm. Doublé d’une isolation intérieure en laine de verre
Parement en acier texture bois

Climatisation réversible chaud/froid. Production d’eau chaude par cumulus 100l

Fenêtre en aluminium RAL 2100 sablé. Double vitrage sécurité SP 10/14/4 ITR 
Réseau électrique complet. Éclairage LED intérieur et extérieur

Terrasse, pergolas

BS20
Studio

BS25
Studio

BS25
Concept

BS25
Love

BS40
Studio